Tato stránka využívá soubory cookies. Prohlížením tohoto webu souhlasíte s jejich použitím. Informace o využití cookies.

+420 777 588 084  (Po - Pá: 8:00 - 18:00)

Domluvit prohlídku domu 

RD Slovanská - rodinné domy Bohumín (Ostrava, Rychvald, Orlová)

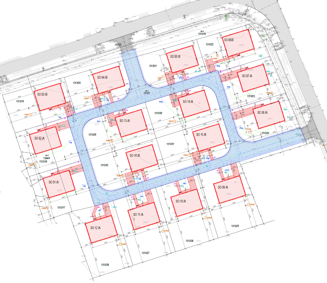
RD Slovanská - situační mapa

Hledáte ideální kombinaci mezi životem na venkově a ve městě? Rádi byste nový dům, ale nemáte čas a energii řešit výstavbu? Pak právě pro Vás máme domy nové generace, které přináší vysoký standard a moderní technologie přátelské k životnímu prostředí.

Doporučujeme ke koupi novostavbu nízkoenergetického rodinného domu v klidném místě Bohumína, městské části Záblatí, která se nachází kousek od Ostravy a Bohumína, Orlové. Jedná se o zděnou stavbu z porobetonových tvárnic (Ytong) s kontaktním zateplením, stropní konstrukce a krov bude dřevěný, střešní krytina z poplastovaného plechu. Dispozice domu je velkorysé 4+kk s jídelnou + technická místnost, dům je efektně rozdělen na klidovou a denní část. Realizace domu bude včetně dokončených interiérů (možnost vlastního výběru dekorů) bez kuchyňské linky. Terénní úpravy budou dokončeny včetně zpevněných ploch kolem domu a nekrytého parkovacího místa. Dům bude napojen na všechny IS - přípojka vody, splaškové kanalizace, přípojka elektro + fotovoltaiky. Plastová okna s izolačním trojsklem. Díky fotovoltaice (s přípravou na bateriérové uložiště) a rekuperaci budou náklady na provoz domu minimální. Příjezd k domu bude zajištěn spoluvlastnickým podílem na společné komunikaci. Realizace stavby byla již zahájena.

Výstavba 16 rodinných domů v roce 2021-2022 (aktuálně v prodeji)

V roce 2021 je ve výstavbě 16 dobře navržených, nadstandardně ekonomických rodinných domů s cenou od 6,5 mil. Kč. Prohlídky domů budou možné od 05/2022, kolaudace domů pak proběhne v termínu 06/2023.

Nepromarněte svou příležitost na bydlení ve velmi atraktivní lokalitě kousek od Ostravy a kontaktujte nás pro více informací a prohlídku domu.

O projektu Kontakt

Typ rodinného domu

Typ rodinného domu

Jednopodlažní rodinný dům o dispozici 4+kk. Velikost domu je 105,8 m² vhodná pro 4-5 člennou rodinu. Jedná se o prostorný dům propojeným obývacím pokojem, kuchyní a jídelnou. Vnitřní dispozice – zádveří, chodba, obývací pokoj s kuchyní a jídelnou, ložnice, dva pokoje, koupelna, WC a technická místnost. Terénní úpravy zahrnují nekryté parkovací místo.

  • Velikost: 4+kk
  • Plocha užitná: 105,8 m2
  • Pozemky: rozdělení
  • Plocha pozemku: 550-749 m2
  • Cena: dle pozemku

Více o domě

Máte zájem o jinou lokalitu pro svůj rodinný dům? Více


RD Slovanská - Bohumín - Záblatí
e-mail: info@rd-slovanska.cz
tel.: +420 777 588 084

Domluvit prohlídku domu Kontakt

Copyright © 2022 REFINA s.r.o., všechna práva vyhrazena. Kopírování jakéhokoliv obsahu bez souhlasu autora stránek zakázáno.
RD Slovanská - developerský projekt | 16 novostaveb rodinných domů v Bohumíně - Záblatí na prodej
Ostrava (centrum - 12 km), Bohumín (centrum - 3,9 km), Rychvald (centrum - 2,6 km), Orlová (centrum - 8 km), Chałupki (centrum - 9,3 km)